Mankato Rental

Office Space and Apartments in Downtown Mankato

Contact Us: 507-351-2297

derek@libertyventures.net


SPACE AVAILABLE!

 
Truth BuildingDowntown Mankato Office for Rent
OFFICE/RETAIL AVAILABLE
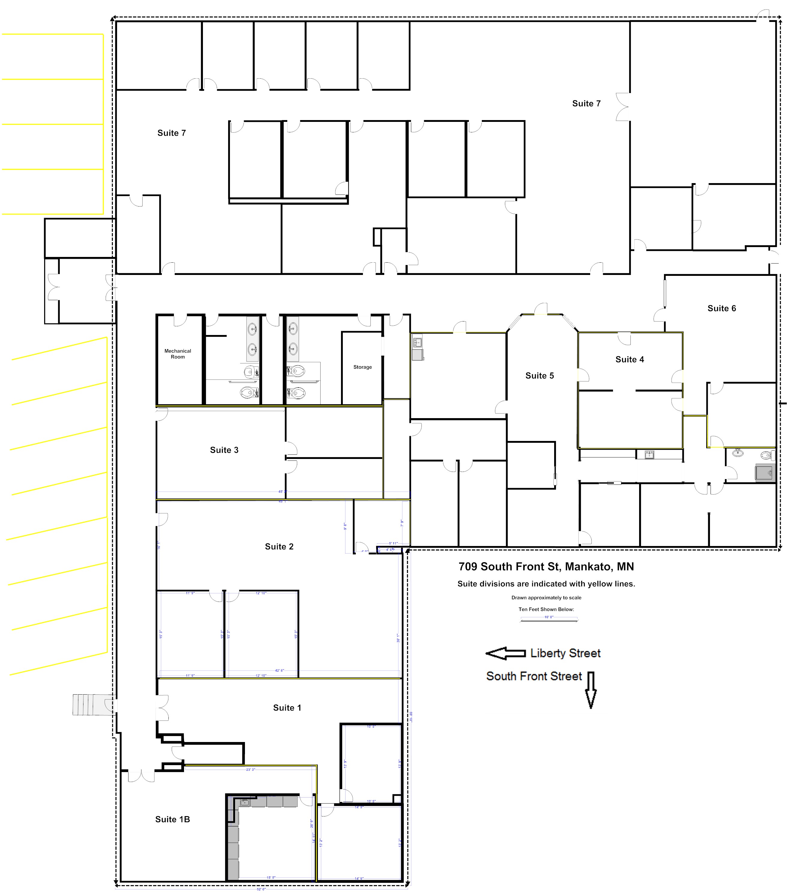
Suite 1       Suite 1B       Suite 2       Suite 3       Suite 4       Suite 5       Suite 6       Suite 7

The Truth Building - Suite 5 - 1,451 Sq. Ft.

Office space for lease in downtown mankato

Suite 5 Space description and photos will be added when this space becomes available for lease.



























Office space for lease in downtown mankato

709 S Front, Mankato, MN

Office space for lease in downtown mankato

Building Floorplan

Office space for lease in downtown mankato

Suite 5 Floorplan