The Liberty Building
The Liberty Building was originally constructed in the 1920s as an automotive dealership. Today the building still benefits from its original charm. The exterior’s original brickwork is accented with beautifully carved stone. Large patterned glass openings cast light into the terrazzo floored showrooms which are now PULP Comics and Games. While the commercial suites have been updated to provide functional and professional modern workspace, remnants of the original character and charm can be found throughout the building.
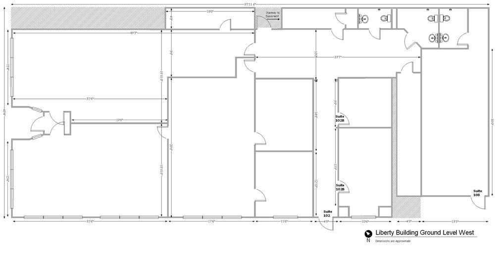
The overall layout of the ground
level can be viewed on the
West half and
East half floor plans. Each suite has designated parking
in the 4,500 square foot
paved lot behind the building, and plenty of two-hour client
parking along Liberty and Front Streets. Extra storage is
available in the dry and spacious basement which features a ramped
entrance with overhead door (a remnant from the automotive
dealership).
The commercial suites are served by high efficiency forced air natural gas heating and rooftop air conditioning. Leases are modified gross, with tenants paying for their electricity and the landlord paying for all other expenses including gas, sewer and water, rubbish and snow removal.
